美迪装饰

高品质装修选美迪

十年后仍爱我家

24小时咨询热线

400-096-6088

您的位置: 首页 > 家装百科 > 装修日记 > 长沙漂亮妹子齐聚豪宅闺蜜趴

长沙漂亮妹子齐聚豪宅闺蜜趴

浏览数:6636次 | 发布时间:2017-04-26 |
分享到:

超宝宝的闺蜜趴承包颜值最高峰

定格一场电影「小时代」似的生活

闺蜜趴举办地的颜值又如何呢?

让我们一起走进超宝宝的新家

看美迪装饰的设计装修实力

\ 房屋信息 \

房子位置_世茂铂翠湾

房型_180㎡ 复式楼

装修总花费_共80万(含家具、家电等)

家居风格灵感来源

我不喜欢沉闷的深色

喜欢刘嘉玲位于上海的家新中式风格

但又不想做新中式

在跟设计师沟通后选择了极简北欧风格,既充满小资情调,又能体现文化品位

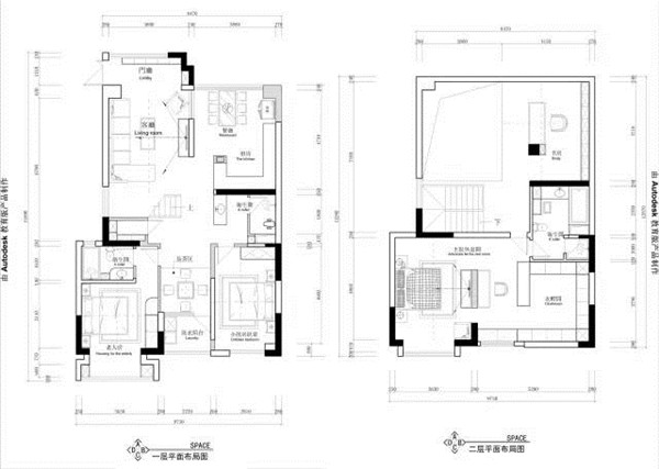
原始户型图

原始户型图

▲原始户型图

平面设计图

▲平面设计图

亮点提示:窗户增大,楼梯整体后移

「美迪装饰」业主 超宝宝 说

因为房子的采光不是很好,因此设计师在结构上做了很多改变,包括把原有的窗户改大做成落地窗,让阳光更多的照进来房屋,将整个楼梯往后移,增大客厅的空间。另外,设计上以浅色调为主,让空间显得更加敞亮通透。

客厅

▲ 客厅

亮点提示:不锈钢雕花电视墙、电器插座隐藏

「美迪装饰」业主 超宝宝 说

在客厅里,最有特色的就是不锈钢雕花的电视背景墙,背景墙上刷的是墙漆,不仅显得平整,哑光的墙面也让墙面看起来更有质感。不锈钢的雕花是从上海定制运回长沙的,当时安装这个高4米多的雕花也费了很大的心思,但是装完后让整个的效果客厅的效果都不一样,背景墙的背面是餐厅的酒水柜,柜子除了收纳物品之外,还把电视机插座都隐藏其中,没有让杂乱的东西打破这个空间整体的美感。

餐厅

▲ 餐厅

亮点提示:开放式厨房、厨房餐厅整体化

「美迪装饰」业主 超宝宝 说

原户型设计的封闭式厨房非常狭小,让人觉得压抑,狭小的厨房使用起来也不方便,跟设计师商量后把厨房的阳台打通,并且,做成开放式厨房,客厅里镂空的不锈钢电视柜让厨房的空间更加宽敞,也更具时尚感。橱柜我选择的是巨迪橱柜的温馨家园系列,性价比极高的一款橱柜,休息的时候,和老公一起在宽阔的厨房一起做饭,在餐桌前聊聊天,喝喝红酒,别有一番生活的情调。

阳台

▲阳台

亮点提示:茶室改做办公区、韩式窗帘显精致

「美迪装饰」业主 超宝宝 说

老公知道我喜欢买衣服,主动把二楼的书房让出来给我加做了一个衣帽间(这才是真爱好嘛)。所以设计师把一楼原本用来做茶室的空间改成一个小型的办公区域,白色的实木书桌配上舒适的靠椅,既简洁又大气。书房与阳台隔断处的窗帘找了很多款式,最终还是在网上从韩国订购了定制的立体花朵款,工艺非常精致,让书房增色不少。

二楼主卧

▲ 二楼主卧

亮点提示:斜顶巧装饰、层次感打破单一

「美迪装饰」业主 超宝宝 说

考虑到以后会有老人一起居住,所以我们将主卧放在二楼,做成一个大套间,但二楼是斜顶结构,很难出好效果,设计师巧妙的将斜顶做了石膏雕花吊顶,不仅精致,也让空间层次感十足。另外,给大家的建议就是一定要选用新风系统,这样不开窗也可让空气流通。

一楼客室

▲ 一楼客室

亮点提示:阳光充足的老人房

「美迪装饰」业主 超宝宝 说

一楼的次卧里阳光充足,所以我把这间房给父母住,父母可以在房间里晒晒太阳,种种花草(真是为老人考虑哦)。次卧的窗帘选择了跟客厅同色的薄荷色窗帘,床品也点缀了这个颜色,给人非常清新的感觉。

走廊、壁画

▲ 走廊、壁画

亮点提示:艺术机构量身定制壁画

「美迪装饰」业主 超宝宝 说

二楼走廊的孔雀壁画也是整个房间的亮点之一。这幅壁画和客厅的油画都是在月湖时当代艺术中心特别订制的,我觉得这不仅仅是一个装饰,更是空间文化元素的一种体现。

空间一角

▲ 空间一角

亮点提示:普通选材、不普通的效果

「美迪装饰」业主 超宝宝 说

装修并不是越贵越好,而是要选对装饰公司、选对设计师,选对材料,一个好的设计师能将普通的材料搭出不普通的效果。我家装修用的材料基本都来自美迪装饰的材料展厅,比如:巨迪橱柜、 朗玛大理石瓷砖、虹昌木门、吉事多卫浴、美涂士漆、万象板材等,这些材料的质量都经得起考验,好而不贵。通过设计师一组合,呈现出的效果就很完美了。

这么“组合”为什么会好看,这就是装饰公司以及设计师的功劳了,感谢他们!

软装

▲软装

亮点提示:软装和摆件画龙点睛

「美迪装饰」业主 超宝宝 说

最后一定要提的是,软装一定要找专业的软装团队,我家全房的家具、窗帘、墙纸等软装都是由米兰映象(长沙店)专业团队打造,部分物品是自己在网上淘的,但也经过他们的指点,不得不说他们非常专业。家里的家具和软装、摆件我都特别喜欢,朋友们看到都觉得:“好美啊!”

睁大眼睛看看超宝宝的心爱之物都是哪里买的啊啊

购物清单

一键装,宜家装修风格,请找长沙美迪装饰,以免费设计家居室内效果图和装修套餐灵活的半包模式,让客户满意度最优秀的公司。装修热线:400-096-6088

分享到:

相关阅读

免费获取报价