美迪装饰

高品质装修选美迪

十年后仍爱我家

24小时咨询热线

400-096-6088

您的位置: 首页 > 家装百科 > 装修日记 > 140㎡的家,有女儿梦幻的公主房,有老婆大大的鞋柜、也有自己的书房

140㎡的家,有女儿梦幻的公主房,有老婆大大的鞋柜、也有自己的书房

浏览数:8528次 | 发布时间:2017-04-26 |
分享到:

 

“ 屋主亮哥是一位80后创意工作者。考虑到一家三口的居住需求,亮哥需要将原本143平米的小四房在结构上进行一些改变,综合考虑房屋性能及屋主需求,美迪设计师将原来的小四房改成了带衣帽间的三室两厅两卫。这样不仅能让房子更加整洁,而且保留了原房屋南北通透的优势。

IMG_5962

?

房主亮哥

  

\ 屋主信息 \

职业_创意工作者年龄段_80后关于自己_这是我的第二套住房,希望在保证使用舒适性的同时拥有自己的格调和文化气息

 

\ 房屋信息 \

房子位置_天心区克拉美丽山庄房型_143平米 四房两厅两卫装修花费_制安13万、主材8万、 软装及家具家电9万 、共计30万装修时长_4个月入住时间_6个月家居风格灵感来源_我比较喜欢那些既具现代感又不失于一些文化底蕴的东西,在设计师的建议下选择了偏现代的新中式风格家中最爱_休闲式的书房和客厅,平时能和朋友一起喝茶聊天,享受生活情趣

IMG_5963

                                                                                                         所有图片均由 亮哥 提供

IMG_5964

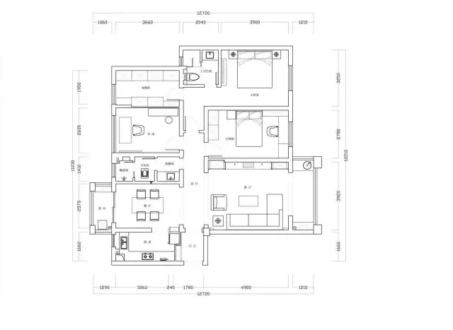
原始户型平面图

IMG_5965

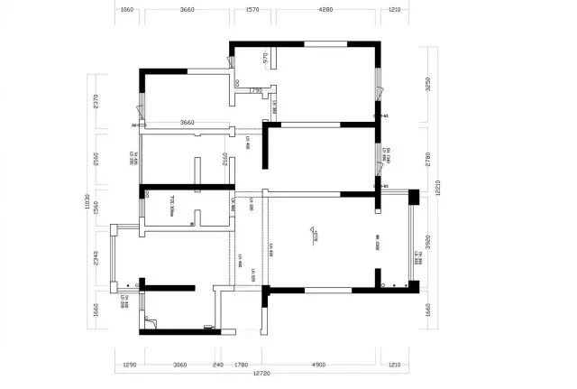
房屋平面布置图『美迪装饰』 业主 亮哥 
房子的户型本身比较周正,在结构上设计师并没有做较大的改动。只是在用途上做了一些小调整。将一间卧室改成了衣帽间,房屋空间得到了最大化利用。

IMG_5966

入户

『美迪装饰』 业主 亮哥 

进门是一条狭长的过道。因为老婆喜欢买鞋,所以在门口为她设计了一满排鞋柜。鞋柜旁边是一面落地的镜子,在每天临出门前帮助我们整理妆容的同时也可以让门厅看起来更大。

 

IMG_5968

IMG_5967

客厅

『美迪装饰』 业主 亮哥

因为家里要收纳的东西很多,所以和设计师沟通后,他在电视背景墙两边都设计了储物柜,既满足收纳功能同时也很美观。

因为我平时比较喜欢看电影又没有多少时间去电影院,所以我特地去买了一台投影仪放在客厅,这也是时下的年轻人所喜欢的。为了不影响房子整体的美感,我要求设计师帮我将它巧妙的隐藏了起来。

 

IMG_5969

餐厅

『美迪装饰』 业主 亮哥

因为餐厅的空间不大,所以设计师建议我把餐厅靠近卫生间的那面墙打掉,向卫生间内移了一点,来增大餐厅的使用空间。餐厅主背景设计师帮我选择了玻璃镜面材质,让整个房子感觉更加通透。

IMG_5972

书房
『美迪装饰』 业主 亮哥 

书房以亲戚朋友聚会为主,为了不占用空间,没有做很多书柜,只在墙上设计了一个书架,以放装饰性摆件为主。

IMG_5971

厨房和卫生间

『美迪装饰』 业主 亮哥

平时用水最集中的地方就是厨房和卫生间,所以空间的利用和布局的合理性非常重要。设计师把卫生间整体都做了独立的干湿分区,选材上橱柜和洗漱台也都是原木定制的,使用起来方便、舒服。


整体亮点『美迪装饰』 业主 亮哥 

IMG_5972

整个房子最大的亮点是书房。或者说它更像一间茶室。有时候约三五个朋友,在书房的原木桌上煮一壶茶,和他们一起喝喝茶、聊聊天,是我最舒服、最惬意的一种生活享受。

IMG_5973

卧室(小孩房)

 

『美迪装饰』 业主 亮哥 

女儿刚上小学,正是有公主情节的年纪。所以设计师特地把小孩房设计成以粉色为主的公主房。包括白色铁艺床以及床头的蕾丝帷幔。同时把她学习需要的一些功能也都考虑进去,包括书桌、书柜等。所以书房也不必要做很多书柜了。 

IMG_5974

想了解更多购买详情,可在微信公众号(长沙美迪装饰)后台留言

IMG_5975

IMG_5976

1美迪装饰:在家居装潢期间你最不放心的是?

亮哥:主要是家具不好配,在长沙跑了很多地方都不满意。最后美迪设计师亲自带领我跑到广东乐从的家具市场才买到。

2美迪装饰:你家里有哪个地方或者装潢期间有哪个阶段是令你感到最遗憾且值得改进的地方?

亮哥:主要是因为预算原因,餐厅到生活阳台的推拉门没有换,原有的门和室内装修的感觉不协调。

3美迪装饰:你家里有哪些是你DIY的东西?

亮哥:除大门外所有房门都没有装锁,因为平时房门基本不锁,装锁意义不大。还不如装定制的加长拉手,实用又美观。

IMG_5977

4美迪装饰:你在家居装潢和家居布置中可以给其他人一些建议吗? 

亮哥:就自身来说,装修应该以居住舒适、实用、合理为主。在家具、材料的选择上尽量选择坚固、耐用的。不需要过多的去追求那些华而不实的装饰。 

房子装好了,茶已沏好了,花都开好了

欢迎『来我家』

————————

 

『来我家』

美迪装饰

客户真实筑家体验分享平台

 

——————

如果你的房子也装好了

欢迎加入美迪『来我家』筑家体验分享计划

分享到:

相关阅读

免费获取报价