
本案业主是一名金融行业精英,常年在国外生活,而本案的设计师也有在海外留学的经历,在两位海归的“作用”下,空间设计将有怎样的表现?
小编寻思着,用Yuppies来概括这个空间再恰当不过了。“Yuppies”是指西方国家年轻能干有上进心的一类人,他们受过高等教育,有较高的知识水平。国外媒体甚至新创了一个词“Chinese Yuppies”来形容中国新一代拥有良好教育背景、收入不菲的年轻人。他们身上集中代表着一个时代的时尚、品味及格调。而该房屋的设计就是Yuppies品位与生活方式的投射。
房屋信息
▼
房子位置_ 北辰定江洋
面积_260平
装修总花费_ 50万
修花费总时长_三个月
入住时长_1个月
家居风格_现代混搭风
家中最爱_客厅、卧室
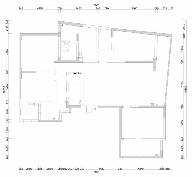
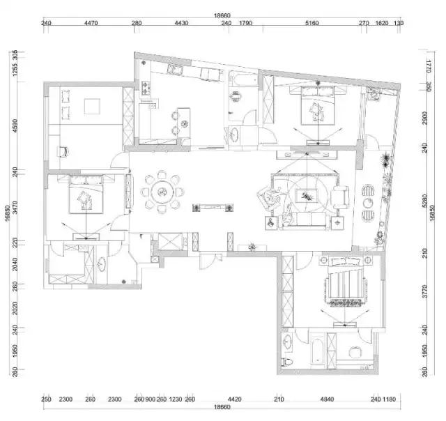
▲平面布置图&原始结构图
业主刘先生喜欢随性而雅致的生活韵味,设计师完全根据业主的个性需求,在设计风格上选择了偏冷峻的雅痞格调。但又担心空间过于冷峻,缺少人情味,所以在配饰和家具上选用了一些明黄,橘黄的色感,使空间彰显一些暖意。颇具国际范的后现代风格,带了少许的混搭元素,给人特立独行的高贵与精致。
▲客厅区域
「美迪装饰」业主 刘先生 说
整个空间以高级灰为主色调,将现代风格的质感完全凸现出来。沙发的黄色和凳子的草绿色在颜色上的跳跃又给空间增加了活力。在温和、稳定的氛围中,用个性和独特的单品带来视觉上的惊喜,没有张扬和夸张,只在舒适和时尚之间创造一种近乎完美、令人惊叹的平衡。
▲客厅区域
「美迪装饰」业主 刘先生 说
后现代风格时尚感十足,既满足了业主对空间的个性化要求,也相当具有质感。同时又带了少许的混搭元素,灯饰上偏重于工业质感,抛弃了掉了传统欧式的琐碎。
▲餐厅区域
「美迪装饰」业主 刘先生 说
餐厅在风格上与整体和谐统一,工业风的创意复古吊灯打破了沉闷,增加了空间的趣味性。大理石台面和金属材质流露出奢华的气息,低调内敛。
▲过道区域
「美迪装饰」业主 刘先生 说
我不喜欢太复杂的东西,包括性格也是一样。所以空间没有过多繁复的装饰,希望能给人清爽干净的感觉。这幅立体的装饰画我觉得有创意,而且在装饰上也提升了空间的格调。
▲厨房
「美迪装饰」业主 刘先生 说
开放式的厨房没有束缚感,给人简约大方的感觉,同时也增加了整个空间的层次感和通透感,白色的餐台和黑色简约餐椅的搭配充满了时尚个性。
▲茶室
「美迪装饰」业主 刘先生 说
因为我平时喜欢喝喝茶,看看电影。所以将这个休闲区域做成了我的茶室兼影音室,木地板的材质,传递出一种舒适温暖的氛围,在这里,可以放下一整天工作的疲惫,让身心得到放松。
▲主卧
「美迪装饰」业主 刘先生 说
卧室将高级灰的气质发挥得淋漓尽致,有点霸道总裁的味道,同时与木质元素搭配在一起,又散发出一种暖暖的气息。
▲次卧
「美迪装饰」业主 刘先生 说
床品都是选用的结构简单倚重与舒适的材质,更去贴合人本身的舒适需求。将较为柔和的配饰元素一起呈现,既有个性的审美体验,又有庇护身心的居住感。
更多空间细节
▼
1、美迪装饰:对装修效果满意吗?有没有令你感到最遗憾且值得改进的地方呢?
刘先生:很满意,在这里要特别说一下设计师龚翔老师,无论是在风格定位还是整个色彩的搭配上都非常统一和谐,所以最后的整体效果是非常好的。而且基本上实现了我个人的个性化需求,设计相当有水准。
2、美迪装饰:在整个装修过程中,你觉得美迪装饰的设计师、施工人员等工作人员带给你最大的感受是什么呢?
刘先生:“省心”应该是美迪给我的最大感受。因为工作原因,我经常不在长沙,而且比较忙。但是整个装修过程,包括设计师、项目经理等都很专业,而且很注重细节,相当省心。
3、美迪装饰:你在家居装潢和家居布置中可以给其他人一些建议吗?
刘先生:我觉得要把品质摆在首位吧,毕竟房子能真正体现一个人的生活品味。其次就是要有自己的个性,住在自己喜欢的房子里绝对会是一件相当享受的事情。
本案设计师>>
美迪装饰五一路总店首席设计师龚翔老师
本案设计师:龚翔
毕业学院:
俄罗斯科斯特罗马国立工业大学
获奖记录:
2009年中国室内设计大赛事例类佳作奖
2011年湖南室内设计大赛家居空间类优秀奖
2012年湖南室内设计大赛方案公共空间类银奖
如果你的房子也装好了
欢迎加入美迪[来我家]筑家体验分享计划
可获惊喜礼品
拨打0731-82197782报名
提交您的信息专业家装顾问1对1服务
免费电话申请: 18684928503
马上提交申请即送1000元家装抵用券