房子装好了,茶已泡好了,花都开好了,欢迎来我家。家体现了一种生活方式,展示着不同的生活情怀。本期“来我家”来到了保利国际广场的老刘和徐女士的新家,跟很多都市女性一样,女主人钟爱优雅与时尚共存的新古典风格,从装修到家具、从装饰到陈列,无不散发出“美”的生活气息,也体现着这家人对待生活的优雅态度和享受生活的理念。
房屋信息
房子位置_保利国际广场
面积_240平
装修总花费_60万
装修花费总时长_三个月
入住时长_1个月
家居风格_新奢古典风
家中最爱_客厅、卧室
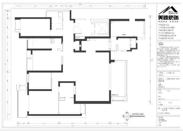
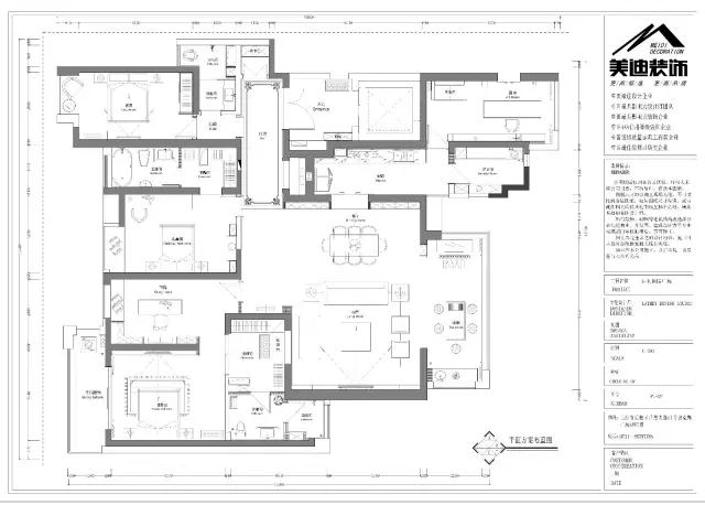
▲原始结构图&平面布置图
这套240平的新奢古典风新家,打破了空间固有设计风格的束缚,在规律中进行变化,宁静的装饰线条、纯净的整体空间、跳跃的颜色搭配,时而闪烁耀眼、时而平静温和,充满生动的灵感和设计的通透感,没有过多繁复的装饰,一气呵成。最自然的呈现,弥漫着高贵又时尚的新古典韵味。
▲客厅区域
「美迪装饰」业主 徐女士 说
客厅以白色为主色调,奠定了整个空间纯净明亮的基调。在装饰上点缀金色、蓝色等,将新古典的奢华与优雅发挥得淋漓尽致。
▲客厅区域
「美迪装饰」业主 徐女士 说
电视背景墙采用金色镶嵌,有都市生活的气息;皮质的材质比墙纸更能提高空间的质感,沙发和窗帘的颜色与材质在搭配上也尽量与整体相呼应。
▲餐厅区域

「美迪装饰」业主 徐女士 说
客餐厅一体化的设计增加了空间的通透感,设计师在这里花了很多心思,将原本单调的隔墙用装饰画丰富,连通了餐厅和厨房。旁边做成方便收纳的酒柜和储物柜,既满足了我的收纳功能,同时充满了丰富的设计感。
▲过道区域
「美迪装饰」业主 徐女士 说
因为我本人非常喜欢画画,也去看过很多画展。这幅收藏的画家李猛的油画,丰富了过道区域的装饰,也符合新古典风格的意蕴,给空间增色不少。
▲书房
「美迪装饰」业主 徐女士 说
可能第一眼看到书房,大家会觉得整个色调和整体有所区别,这正是别有用心的地方。棕色给人的第一印象就是温暖、沉稳,营造一种适合学习的安静氛围。
更多空间细节
▼
1、美迪装饰:对装修效果满意吗?有没有令你感到最遗憾且值得改进的地方呢?
徐女士:非常满意,我觉得最后呈现的效果是超过预想的。我的朋友们都特别羡慕我,新家的装修收获了一波好评,挺开心的。
2、美迪装饰:在整个装修过程中,你觉得美迪装饰的设计师、施工人员等工作人员带给你最大的感受是什么呢?
徐女士:“专业”应该是美迪给我的最大感受。设计师丁明老师在了解了我们的需求后,在设计上达到了功能性和美观性兼顾的效果。包括客服经理、项目经理的服务都非常专业,每次我提出的问题都会立马解决,所以整个装修过程还挺顺利的,很省心。
3、美迪装饰:你在家居装潢和家居布置中可以给其他人一些建议吗?
徐女士:我觉得首先房子最能体现一个人的生活品质,所以在装修上还是要有一定的品质追求。在硬装部分要考虑到家人的生活方式和习惯,尽量多兼顾功能性和实用性;软装部分可以多考虑个性化需求和喜好。
本案设计师>>
美迪装饰河西店设计总监丁明老师
本案设计师:丁明
2005年湖南省第五届室内设计大赛优秀奖
2007年湖南省第七届室内设计大赛铜奖
2010年第四届室内设计大赛银奖
2011年中国室内设计大赛方案类金奖
2012年湖南省第十二届室内设计大赛银奖
2013年中国室内设计大赛作品方案类银奖
2014年中国居然杯设计大赛案例类作品金奖
2014年CIID双年奖设计大赛奖项
2015年湖南省室内设计大赛实例类银奖
提交您的信息专业家装顾问1对1服务
免费电话申请: 18684928503
马上提交申请即送1000元家装抵用券