美迪装饰

高品质装修选美迪

十年后仍爱我家

24小时咨询热线

400-096-6088

您的位置: 首页 > 家装百科 > 装修日记 > 仅30万装出了180㎡大平层豪宅范儿!

仅30万装出了180㎡大平层豪宅范儿!

浏览数:8784次 | 发布时间:2017-04-26 |
分享到:

         房子装好了,茶已泡好了,花都开好了,欢迎来我家。本期来我家来到了地泰御璟苑一对85后小夫妻的新婚房。走进新家给人的第一感觉就是太有个性了,颠覆了我对豪宅(大平层)的固有看法,180㎡的空间,没有堆砌没有造作,只有一气呵成的简约与品位。这家主人是一对时尚的夫妻,他们对装修一致的理念就是要时尚有品质,也要简单不啰嗦,所以,这套精致的极简现代风格作品应运而生。

1

房屋信息

 

房子位置_地泰御璟苑

面积_180平

装修总花费_30万(包含家具软装)

装修花费总时长_三个月

入住时长_1个月

 

家居风格_极简现代风

家中最爱_客厅、阳台

 

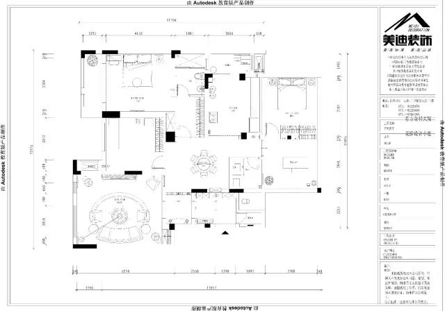
2

3

▲原始结构图&平面布置图


极简风格最大的特点在这套作品当中可以说是发挥到了极致,空间设计以方便性和实用性为主,讲究房间自身的质地美感和黑白两色的搭配效果。放弃多余的附加装饰,点到为止。不会拖泥带水,给人以清爽简洁的享受。整个空间呈现出感官上的简约整洁,也体现了这对年轻夫妻的时尚品味和优雅的生活态度。


▲门厅区域

4

「美迪装饰」业主 呙女士  

门厅的区域进行了改造,将客厅和门厅之间的隔墙打通,整个客厅也更加宽敞通透。因为我老公平时喜欢玩电脑,所以这个地方就设置成了他的休闲区域。将墙面做成百叶的形式,白天如果有光影透进来会很漂亮,提升了空间的层次感,而且空气也更加流通。

5 ▲客厅区域

「美迪装饰」业主 呙女士  

整个客厅的设计非常简单,嵌入式的电视背景墙,黑白两色的搭配,给人简洁明亮的感觉。在沙发的颜色和材质选择上,我们选的纯黑色的皮质沙发,现代感十足,增加了整个客厅的质感。

6 ▲餐厅区域

「美迪装饰」业主 呙女士   

在结构改造上,打通餐厅和卧室的墙,连通阳台,这样就扩大了整个餐厅的面积。玻璃门的设置也是点睛之笔,这样餐厅看起来更加明亮。为了保持现代风的极简,用简单的嵌入式顶灯来替代复杂的灯饰,没有过多的装饰,将极简做到极致。

7 ▲主卧

「美迪装饰」业主 呙女士  

我希望我的设计不要千篇一律,特别是卧室。所以设计师也花了挺多心思,在颜色的搭配上,房门、地板和床都是统一选用的深黑色,给人一种非常安静的感觉,在这里可以放下工作一天的疲惫,身心好好地放松。主卧特地设置了一个衣帽间,可以充分满足收纳的功能,实用性很强。

8 ▲阳台

「美迪装饰」业主 呙女士   

因为我们俩都喜欢大阳台,所以做空间改造的时候特意留出来一个大阳台,在这里我可以种一些花花草草,或者周末躺在沙发上晒晒太阳看看书,享受属于自己的美好时光,在整个房子里面,我最喜欢的就是阳台了。

 

有句话说,喜欢就是放肆,爱是克制,而这套风格就是克制。细水长流,来日方长。

 

 

如果觉得照片不够立体

角度不够全

细节不够多的话

(扫描二维码,体验360全景)

?

9

 

10

11

12


1美迪装饰:对装修效果满意吗?有没有令你感到最遗憾且值得改进的地方呢?

 

呙女士:挺满意的,家里的每个空间我都挺喜欢的,和我当初设想的效果差不多。很多人跟我说新婚房就应该是温馨浪漫的,但对我们俩来说,新家舒适简单就好,要有属于我们两人的个性和特色。

 

2美迪装饰:在整个装修过程中,你觉得美迪装饰的设计师、施工人员等工作人员带给你最大的感受是什么呢?

 

呙女士:特别负责任。装修过程中,设计师给我们提了很多很好的建议,包括空间结构的改造和家居软装的搭配等,她特别懂我,可以说这个空间真的是为我量身定制的。虽然看起来简单,但装修过程其实非常复杂,好在项目经理、设计师和施工团队都非常细心。

 

3美迪装饰:你在家居装潢和家居布置中可以给其他人一些建议吗?

 

呙女士:我觉得装修很重要的一点就是空间的功能性和实用性这些都要考虑到,因为毕竟家是你要居住很长时间的,不像酒店,住的舒服远比好看更重要,所以应该在舒适的基础上去考虑空间的美观。

 

 

特别鸣谢>>

美迪装饰河西店首席设计师夏元老师

  

 

分享到:

相关阅读

免费获取报价