美迪装饰

高品质装修选美迪

十年后仍爱我家

24小时咨询热线

400-096-6088

您的位置:美迪装饰 >家装案例 >湘域中央花园139㎡现代风格装修案例图

湘域中央花园139㎡现代风格装修案例图

235人喜欢 浏览人数:9806次 更新时间:2018-08-18 18:43:35
分享到:
案例风格  现代简约 案例户型 案例面积 139㎡
楼盘名称 湘域中央花园 装修形式 全包 案例造价 20万元
服务店面 设计师 刘郴娟 预约电话 13687347997

设计理念:

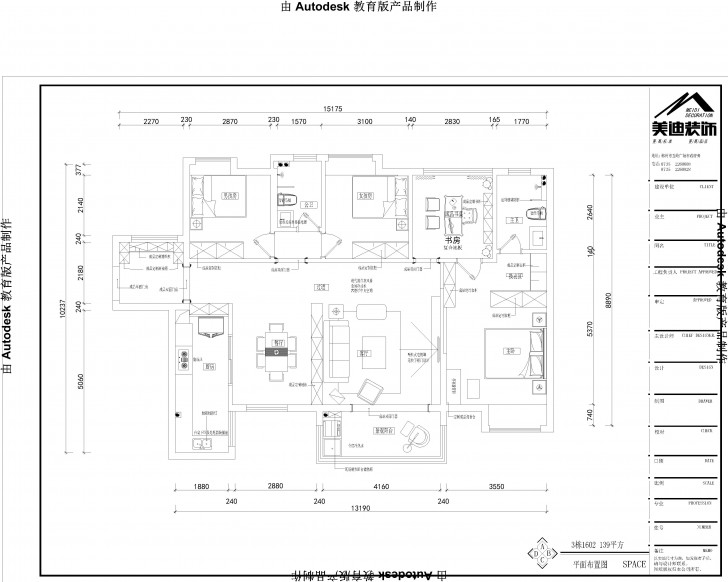
户型图
客厅

湘域中央花园139㎡现代风格装修案例图--平面布置图

湘域中央花园139㎡现代风格装修案例图--平面布置图

湘域中央花园139㎡现代风格装修案例图--客餐厅

湘域中央花园139㎡现代风格装修案例图--客餐厅

湘域中央花园139㎡现代风格装修案例图--客餐厅

湘域中央花园139㎡现代风格装修案例图--客餐厅

标签:  现代简约

相似案例推荐

查看全部案例
免费

免费申请户型规划

专属设计师免费1对1全程服务

免费电话申请: 400-096-6088

申请户型规划即送1000元家装抵用券

免费获取报价