美迪装饰

高品质装修选美迪

十年后仍爱我家

24小时咨询热线

400-096-6088

您的位置:美迪装饰 >家装案例 >龙凤嘉园183㎡新中式装修案例图

龙凤嘉园183㎡新中式装修案例图

256人喜欢 浏览人数:12519次 更新时间:2018-08-18 19:16:53
分享到:
案例风格  新中式 案例户型  四室 案例面积 183㎡
楼盘名称 龙凤嘉园 装修形式 全包 案例造价 30万元
服务店面 设计师 彭俊 预约电话 13687347997

设计理念:

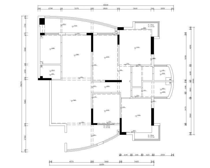
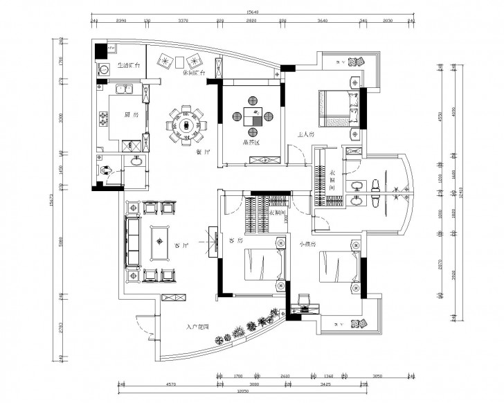
户型图
客厅

龙凤嘉园183㎡新中式装修案例图

龙凤嘉园183㎡新中式装修案例图

龙凤嘉园183㎡新中式装修案例图

龙凤嘉园183㎡新中式装修案例图

龙凤嘉园183㎡新中式装修案例图

龙凤嘉园183㎡新中式装修案例图

标签:  新中式  四室

相似案例推荐

查看全部案例
免费

免费申请户型规划

专属设计师免费1对1全程服务

免费电话申请: 400-096-6088

申请户型规划即送1000元家装抵用券

免费获取报价